图片

澳门棋牌app官网_澳门皇冠棋牌-游戏下载

当前位置:主页 > 演讲与口才 > 礼仪课堂 > 商务礼仪 > 通信礼仪 > >

涉外书信礼仪

来源::未知 | 作者:澳门棋牌app官网_澳门皇冠棋牌-游戏下载 | 本文已影响
    尽管时下各种电讯手段十分发达,但书信这种古老的信息传递方式仍然是人们交流思想、业务往来的重要途径。借助书信工具传递信息,必须区分国内书信与涉外书信,二
者在格式"称谓"邮发等方面有较大不同之处。
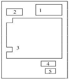
从格式上看,涉外书信如英文信件的基本格式为:
信头及发信人地址"发信日期――见图中1
称呼――见图中2
正文――见图中3
结尾――见图中4
签名――见图中5
英文书信的信头,一般以写信人自己的地址开始,格式同信封上的写法相同。地址每行尾用逗号,最后一行末用句号。记住,不能在地址上写自己的名字。地址下面接着的是日期,英文书信日期习惯写法是先日、月,后年,美国人则先写月、日,后写年。日期用基数词或序数词均可。
英文书信的称谓,是对收信人的尊称语。大多写在信笺左边,约在信头下半英寸之处。在私人信件中,常在收信人名前加上”亲爱的”(Dear)或”我亲爱的”(My dear)。写给年长者、老师或其他敬重之人,则在姓前加上”先生”、”夫人”或”太太”、”小姐”等。
英文书信正文同汉语一样,是要给写信人说的话。正文大多在称谓下一行开始,信封的左边要留有一英寸大小空白。
信的结尾往往是几个常用的致敬语,紧接正文之下,结尾的第一个词要大写,最后一个词后用逗号。私人书信结语大多为:“致以美好祝福,你的朋友”,或“顺致敬意,你忠实的朋友”之类。
英文书信签名放在结尾下面空开一点的略偏右处。若是私人信件,签上自己名即可,不宜放上自己的头衔。
英文信纸须用质量好的白色纸,书写用黑色或蓝色墨水。
信写好后,装入如下格式的信封:
 
信封内容为:
1.收信人地址:包括收信人、寓所门牌号、街号、市镇名
称、所属国家、所属国名。
2.收信人的邮区号码。
3.收信人姓名。先写名,后写姓。
4.收信人称谓。在姓名前加上。
5.寄信人地址。
特别提醒之语,应写在信封左上角寄信人名址之下,如“请
勿折叠”之类。

澳门棋牌app官网_澳门皇冠棋牌-游戏下载

热榜阅读TOP

本周TOP10

外贸书信礼仪

外贸书信礼仪

外贸书信是同外国人及有关方面进行经济贸易或业务往来的专用信函,大致包括如下一些方面: 询问信 即询问...